Travaux très appliqués autour d’une cour de récré.
Milena Chessa – 06 Février 2024
Parfois, l’architecture s’apparente à de l’acupuncture. Exemple à Mons-en-Baroeul (Nord), près de Lille, où l’école élémentaire « La Paix », inaugurée en 1938, a fait l’objet d’un traitement thérapeutique ciblé sur quelques points névralgiques afin de remédier à des désordres. Le tout premier était structurel. « Un morceau de hourdis en terre cuite est tombé – par chance un mercredi- dans une salle de classe vide, se remémore Christophe Lambin, directeur général adjoint en charge de l’aménagement à la commune. Les aciers du plancher en béton de l’étage, corrodés à cause d’un défaut d’enrobage, ont gonflé et fait éclater la matière. Des travaux étaient donc nécessaires pour résoudre le problème. »
Ils ont été confiés en 2019 à l’agence Alt174 Architecture, dont les cofondateurs, Adrien Coste et Guillaume Vienne, venaient récemment de s’installer à leur compte à Tourcoing. « Notre mission consistait à cureter la totalité des hourdis, passiver les aciers, renforcer la structure existante et y appliquer un nouveau plafond qui intègre le traitement acoustique et l’éclairage », décrit Guillaume Vienne. « Mais rien ne pouvait être suspendu au plancher, précise son associé. Nous avons alors réalisé un plafond à caissons, composé de quatre poutres Steico en bois – deux entre les façades sur cour et sur rue et deux entre les murs de refend – qui reprend le quadrillage du carrelage d’origine au sol. »

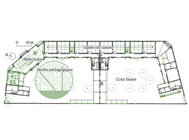
Espace de restauration. Le même système de caissons a été déployé dans le hall d’entrée de l’école autrefois réservé aux garçons, devenu aujourd’hui un réfectoire. La création de cet espace de restauration représentait le deuxième point sensible à traiter, car il évite aux demi-pensionnaires de devoir sortir de l’établissement pour aller déjeuner. Les architectes ont transformé en cuisine la classe-musée qui jouxtait le hall. Les enfants prennent et déposent leurs plateaux-repas à l’intérieur d’alcôves de forme triangulaire, entièrement carrelées, situées de part et d’autre du réfectoire. La banquette et les casiers mobiles rendent la salle polyvalente.
Après la pause déjeuner, les élèves peuvent désormais accéder de plain-pied à la cour de récréation qui a été nivelée. Une partie de l’enrobé a laissé place à un jardin pédagogique de pleine terre, cerclée d’un banc. Mais le plus gros changement apporté par Adrien Coste et Guillaume Vienne, qui touche au dernier point crucial de l’opération, concerne la démolition des deux escaliers extérieurs en brique et en métal. « Ces excroissances, ajoutées lors de la surélévation de l’école dans les années 1950, écrasaient la cour par leur massivité explique Christophe Lambin. L’agence Alt174 Architecture a eu la bonne idée de les réinjecter à l’intérieur du bâtiment. » Les escaliers sont aujourd’hui éclairés naturellement par des murs rideaux.
« Nous sommes très satisfaits de ce projet livré à la rentrée scolaire 2023, conclut le directeur général adjoint à la mairie. Outre un meilleur confort, les architectes ont offert aux utilisateurs de l’établissement une ouverture sur le stade voisin, à travers des baies vitrées et des portes ménagées dans le mur d’enceinte. C’est extraordinaire en terme de ressenti. On ne s’assoit plus contre une paroi opaque, mais transparente, qui permet de profiter de la vue et de la lumière. » Voilà une architecture acupuncture qui fait du bien.
Maîtrise d’ouvrage : Ville de Mons-en-Baroeul, Maîtrise d’oeuvre : Alt174 Architecture (architecture mandataire, paysage, OPC).BET : Projex (TCE, économiste), Principales entreprises : Tommasini (gros oeuvre), Cabre (ravalement), MEC (menuiseries extérieures, bois), STM (menuiseries extérieures aluminium), Victoire (plafonds, cloisons), Metranor (menuiseries intérieures, bois), Cogez Métal (serrurerie), GDTP (VRD, espaces verts).
Surface : 2 231 m² SU. Coût des travaux : 2 715 000 € HT
___________






